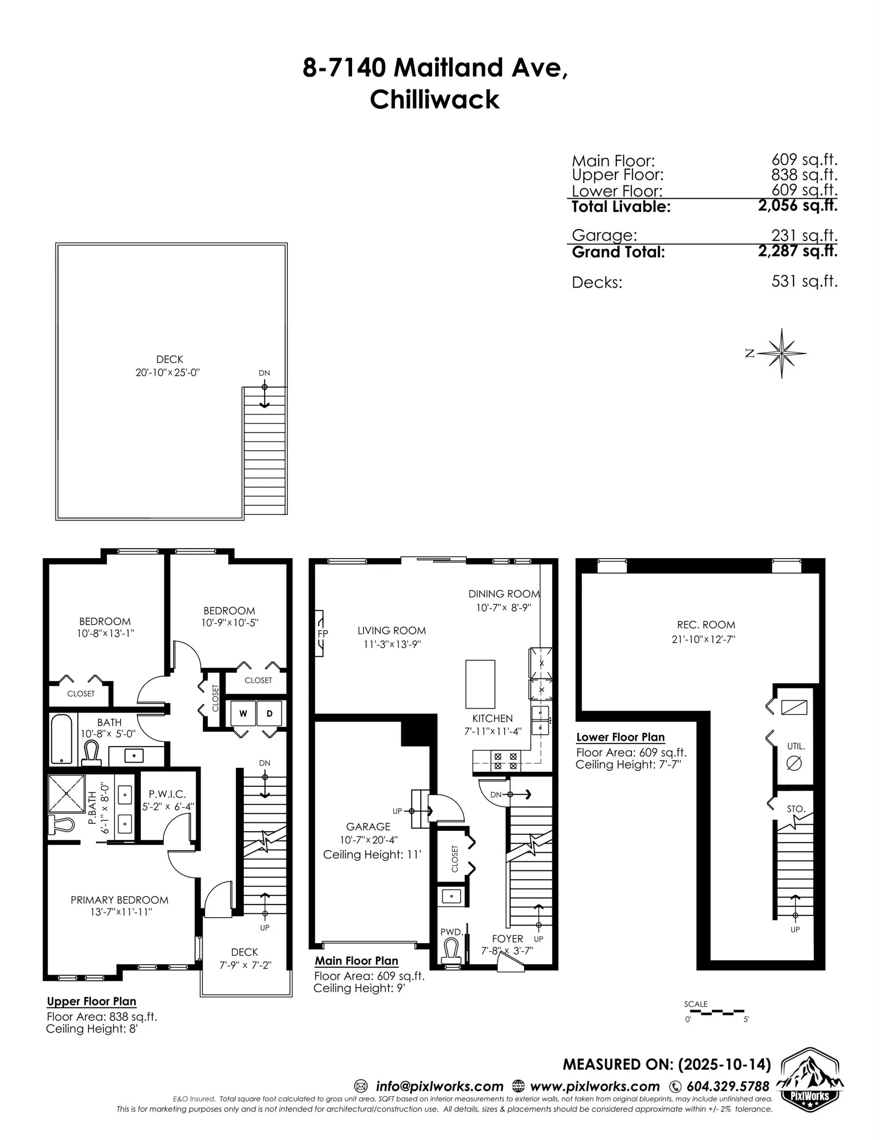
Property Type
Townhome
Parking
1 garage, 2 parking
MLS #
R3058865
Size
2056 sqft
Basement
Full
Listed on
-
Lot size
-
Tax
$3,158.69 /yr
Days on Market
-
Year Built
2021
Maintenance Fee
$390 /mo
